Móng băng là gì?

Thi công móng băng đúng kỹ thuật không chỉ đảm bảo độ an toàn, bền vững cho công trình mà còn ảnh hưởng trực tiếp đến tuổi thọ của ngôi nhà. Vậy cụ thể móng băng là gì? Thi công móng băng như thế nào đúng chuẩn? Cùng NHÀ ĐẸP SÀI GÒN tham khảo bài viết sau đây nhé!

NHỮNG THÔNG TIN CƠ BẢN VỀ MÓNG BĂNG

1. Móng băng là gì?

Móng băng là gì, câu hỏi này được rất nhiều gia đình chuẩn bị xây nhà quan tâm. Móng băng là loại móng có kết cấu một dải dài, thường được đặt độc lập hoặc thành hình chữ thập để chịu tải, nâng đỡ cột nhà và bờ tường. Móng băng thường sử dụng trong các công trình dân dụng nhờ độ lún đồng đều, giá thành phải chăng.

Móng băng thường được sử dụng trong các công trình dân dụng từ 3 đến 5 tầng.

Về cấu tạo, móng băng bao gồm lớp bê tông lót móng, bản móng và dầm móng. Về phân loại, xét theo tính chất và độ cứng, móng băng gồm ba loại đó là móng mềm, móng cứng, móng kết hợp. Xét về kết cấu theo phương, móng băng chia thành hai loại đó là móng băng 1 phương và móng băng 2 phương.

Móng băng phù hợp với những công trình nhà phố, nhất là những công trình xây dựng từ 3 đến 5 tầng. Đối với nhà cấp 4, phương án tối ưu nhất là móng cốc. Riêng với biệt thự, nhà vườn… bạn có thể sử dụng móng băng nhưng móng bè thường được lựa chọn phổ biến hơn.

2. Ưu điểm của móng băng

  • Chịu lực tốt: Đây là ưu điểm lớn nhất của móng băng, vì thế trong những công trình từ 3 tầng trở lên, người ta thường sử dụng móng băng.
  • Giúp công trình bền vững hơn: Móng băng tạo sự liên kết vững chắc giữa cột và tường nhà, giúp ngôi nhà vững chắc và đảm bảo độ bền cao.
  • Giảm áp lực cho phần đáy: Móng băng có kết cấu chịu lực tốt, làm giảm áp lực lên phần đáy, đồng thời chống nghiêng và chống lún hiệu quả.
  • Truyền tải trọng lực đồng đều: Nhờ kết cấu đồng đều giữa các móng, móng băng giúp phân tán trọng lượng của ngôi nhà, đảm bảo khả năng chịu tải tốt.

Móng băng có khả năng chịu lực tốt, giúp công trình đảm bảo độ bền cao.

3. Nhược điểm của móng băng

  • Chiều sâu nhỏ khiến móng băng dễ bị lật và không ổn định.
  • Lớp bề mặt chịu tải kém, ảnh hưởng đến sức chịu tải chung của nền móng.
  • Yêu cầu kỹ thuật xây dựng cao, đòi hỏi kỹ sư có tay nghề cao thực hiện.

Quá trình thi công móng băng đòi hỏi đội thợ có tay nghề cao.

TÌM HIỂU QUY TRÌNH THI CÔNG MÓNG BĂNG

Bước 1: Giải phóng mặt bằng

Đây là bước đầu tiên có ý nghĩa quyết định đến chất lượng thi công. Bước này yêu cầu sử dụng máy móc chuyên dụng để làm phẳng bề mặt, đồng thời chuẩn bị đầy đủ trang thiết bị bảo hộ lao động và vật liệu xây dựng như cát vàng, xi măng, thép, đá… Ngoài ra, việc vệ sinh công trường trước khi khởi công là điều cần thiết nhằm tạo môi trường làm việc an toàn, hiệu quả.

Giải phóng mặt bằng giúp quá trình thi công móng băng diễn ra nhanh chóng, thuận lợi.

Bước 2: San lấp mặt bằng móng băng

Dựa theo bản vẽ kỹ thuật, đội ngũ thi công sẽ tiến hành san lấp mặt bằng theo nguyên tắc từ vị trí cao xuống thấp. Công đoạn này gồm ba bước chính: xác định trục thi công trên nền đất, đào rãnh móng theo trục đã cố định, sau đó làm sạch khu vực đào bằng cách loại bỏ đất thừa và hút nước đọng, đảm bảo mặt bằng thi công đạt yêu cầu.

San lấp mặt bằng móng băng theo nguyên tắc từ cao xuống thấp.

Bước 3: Chuẩn bị cốt thép

Cốt thép có thể được gia công tại nhà máy hoặc ngay tại công trường, nhưng cần đáp ứng các tiêu chuẩn kỹ thuật. Trước khi đưa vào lắp đặt, bề mặt thép phải sạch, không bám bụi bẩn, bùn đất hay tạp chất để đảm bảo khả năng kết dính tốt nhất với bê tông.

Cốt thép có thể gia công tại nhà máy hoặc công trình.

Bước 4: Lắp dựng cốp pha

Cốp pha đóng vai trò quan trọng trong việc định hình kết cấu móng băng và ảnh hưởng trực tiếp đến chất lượng công trình. Hệ thống cốp pha cần được lắp đặt chắc chắn, có độ dày phù hợp, không bị biến dạng khi chịu tải từ bê tông và cốt thép. Việc thi công phải tuân theo các tiêu chuẩn kỹ thuật để đảm bảo độ chính xác cao.

Lắp dựng cốp pha là bước quan trọng nhất trong thi công móng băng.

Bước 5: Đổ bê tông

Sau khi hoàn tất lắp đặt cốt thép và cốp pha, đơn vị thi công tiến hành đổ bê tông theo quy trình chuẩn. Bê tông cần được trộn theo đúng tỉ lệ, đổ đồng đều, không lẫn tạp chất, đảm bảo độ kết dính tốt. Trong quá trình thi công, cần kiểm tra kỹ lưỡng để tránh tình trạng rỗ, nứt hoặc sai lệch so với thiết kế ban đầu.

Khi đổ bê tông móng băng, cần tuân theo đúng quy trình chuẩn, đảm bảo độ bền cho phần móng và tổng thể công trình.

Bảng chi phí thi công móng băng tham khảo.

THAM KHẢO BẢN VẼ MÓNG BĂNG CƠ BẢN

Sau đây là một số bản vẽ móng băng cơ bản mà bạn có thể tham khảo:

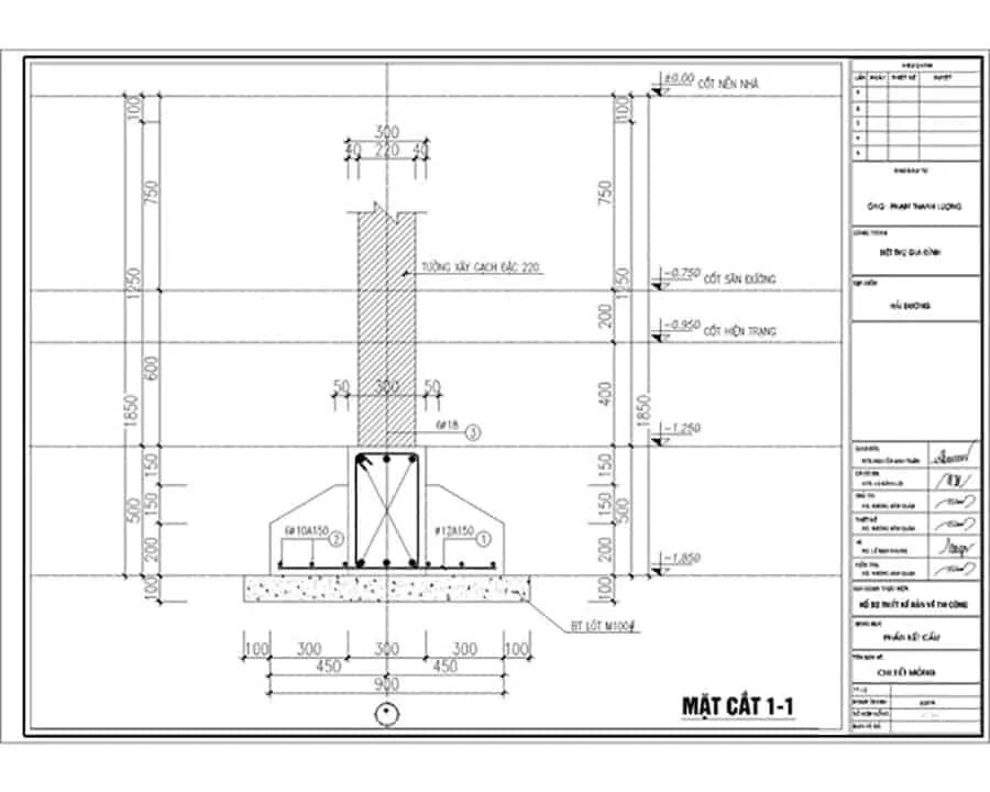
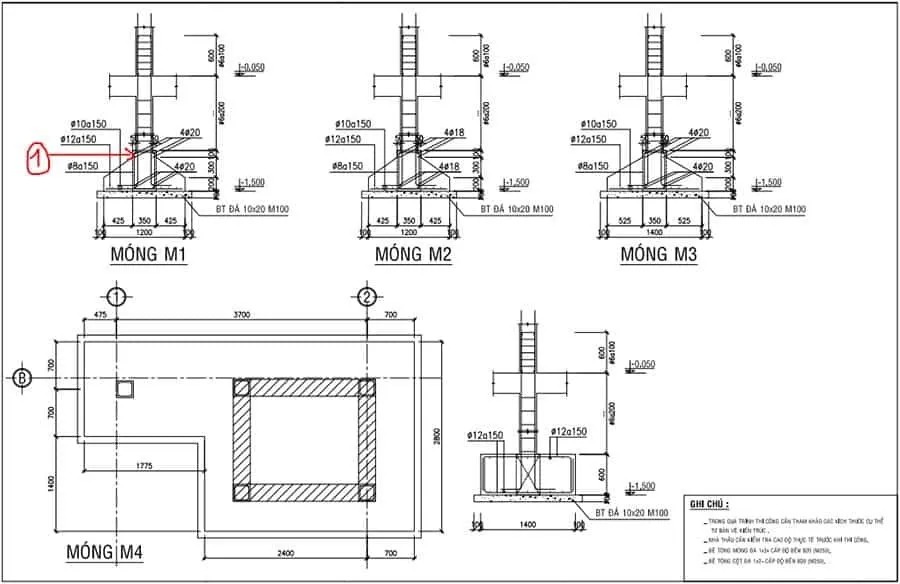
Bản vẽ móng băng nhà 1 tầng.

Bản vẽ móng băng nhà 2 tầng.

Bản vẽ móng băng nhà 3 tầng.

NHỮNG LƯU Ý KHI THI CÔNG MÓNG BĂNG

  • Lựa chọn thiết kế phù hợp: Trước khi thi công móng băng, hãy tính toán và lựa chọn loại móng phù hợp với công trình, đảm bảo khả năng chuyên chở và tối ưu chi phí.
  • Khảo sát lô đất xây dựng: Điều này giúp bạn hiểu rõ tình trạng đất, qua đó dễ dàng đưa ra phương án giải phóng mặt bằng và thi công hiệu quả.
  • Dự trù chi phí: Đo lường chi phí một cách chi tiết giúp bạn lựa chọn mẫu thiết kế, vật liệu phù hợp với ngân sách.

Gia chủ cần tính toán kỹ lưỡng chi phí làm móng nhà để phù hợp với ngân sách.

Trên đây mình đã giải đáp thắc mắc móng băng là gì, bên cạnh đó là ưu nhược điểm, quy trình thi công cùng những lưu ý quan trọng khi xây dựng móng nhà ở. Mong rằng bạn sẽ nhanh chóng tìm kiếm được loại móng phù hợp với công trình nhà ở của mình.

Quý gia chủ có nhu cầu tư vấn và thiết kế thi công trọn gói, hãy liên hệ ngay Công ty TNHH Xây dựng Kiến trúc NHÀ ĐẸP SÀI GÒN. Chúng tôi sẽ nhanh chóng tư vấn dự toán tổng chi phí hoàn toàn miễn phí.

Các câu hỏi thường gặp
Bảng giá thiết kế & thi công nhà phố, biệt thự tại NHÀ ĐẸP SÀI GÒN
Trong báo giá, NHÀ ĐẸP SÀI GÒN lắng nghe, hiểu rõ những gì khách hàng mong muốn nhằm đề xuất giải pháp phù hợp. Đồng thời, áp dụng chuyên môn và kỹ thuật để phân tích từng khía cạnh của dự án, từ vật liệu đến quy trình để chi tiết báo giá cho từng hạng mục từ thi công thô đến hoàn thiện và nội thất. Bên cạnh đó, chúng tôi gửi báo giá đúng hẹn và đảm bảo tính tương đối giữa khối lượng trong dự toán và quyết toán....
Tại sao NHÀ ĐẸP SÀI GÒN có nhiều đơn giá thi công khác nhau?
Mỗi đơn vị sẽ có mức định giá riêng. Vì nhiều đơn giá khác nhau nên cũng dẫn đến những trăn trở cho chủ đầu tư. Tuy nhiên, sự khác biệt sẽ xuất phát và cấu thành từ nhiều yếu tố. Trong đó, NHÀ ĐẸP SÀI GÒN đưa ra một số khía cạnh để chủ đầu tư có thể cân nhắc khi lựa chọn: 1. Vật liệu, thiết bị sử dụng Tùy mức độ đầu tư của gia chủ (thấp, trung bình, khá, cao cấp) mà sẽ có đơn giá khác nhau....
Cách giảm chi phí phát sinh hậu kỳ trong quá trình thi công
Phát sinh chi phí hậu kỳ trong quá trình thi công là vấn đề mà nhiều chủ nhà quan ngại và đây cũng là câu hỏi được nhiều khách hàng nhắn gửi đến NHÀ ĐẸP SÀI GÒN. Để giúp khách hàng dễ dàng kiểm soát và hạn chế chi phí phát sinh trong quá trình thi công, dưới đây là chia sẻ từ KTS Lê Quang Trung: Việc hạn chế phát sinh hậu kỳ trong quá trình thi công, trước hết liên quan đến đơn vị thiết kế. Nếu đơn vị thiết...
Nên chọn thi công trọn gói hay đội thi công riêng lẻ để tiết kiệm chi phí?
Xây dựng nên một tổ ấm tiện nghi, hiện đại và bền vững là niềm mong ước của nhiều gia chủ. Song với đó, việc lựa chọn dịch vụ thi công trọn gói được nhiều gia chủ ưu tiên lựa chọn hiện nay. Dưới đây là giải đáp chi tiết giúp gia chủ hiểu rõ hơn lợi ích khi lựa chọn xây nhà trọn gói. Thông thường để hoàn thiện ngôi nhà, có 3 cách để chọn đơn vị nhà thầu Chọn đơn vị nhà thầu chỉ cung cấp nhân...








    CÔNG TY TNHH XÂY DỰNG KIẾN TRÚC NHÀ ĐẸP SÀI GÒN